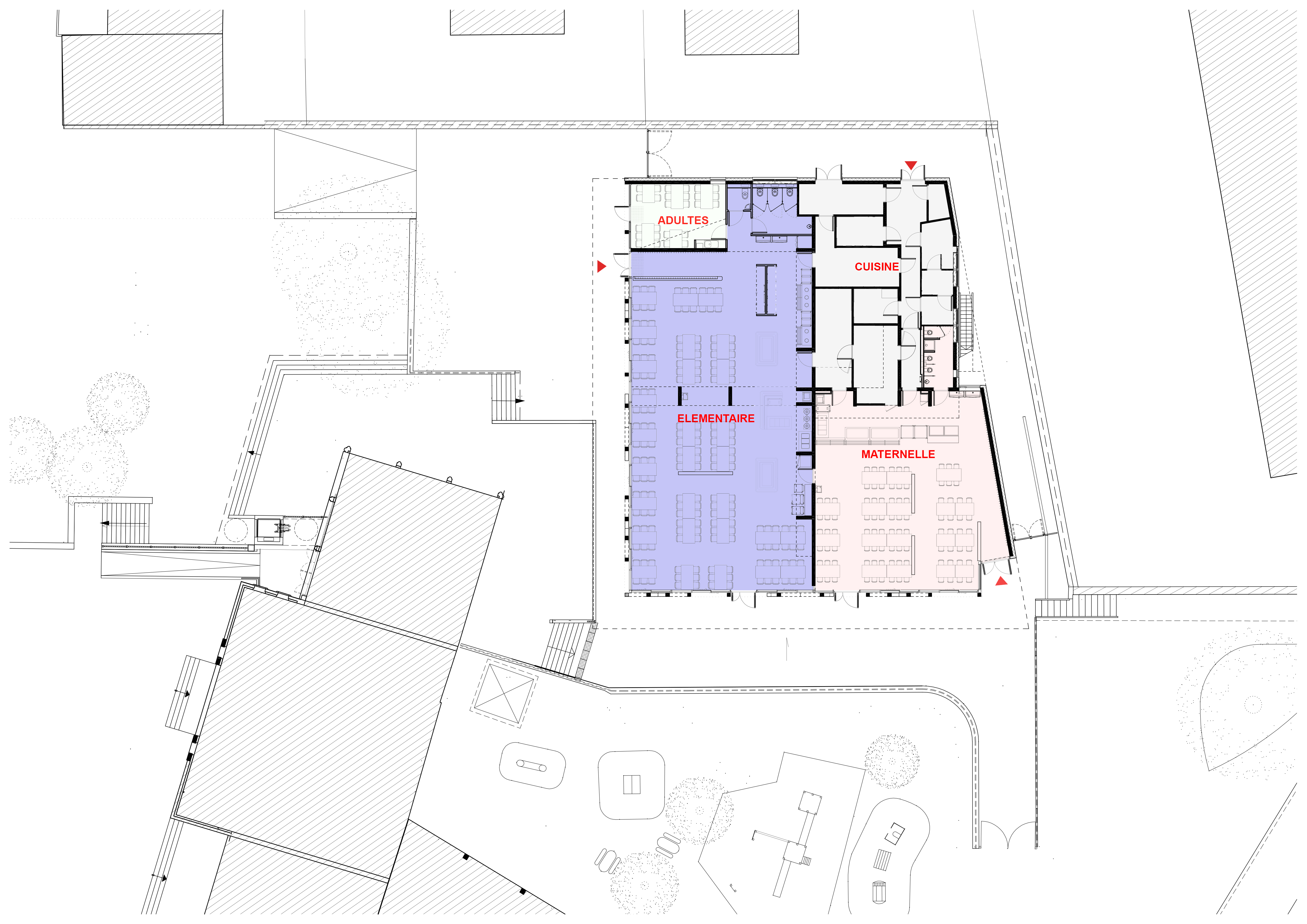
Restaurant groupe scolaire Renan à Meudon (92)
Maître d’ouvrage Ville de Meudon (92)
Architectes Aden Architectes
Bet + économiste BCCB
Surface 700 m² neuf + asc Pmr espaces extérieurs
Coût 1 970 000 € HT
Mission Mission complète
Livraison 2017
Programme Construction du nouveau restaurant scolaire. Réfectoires maternelles, élémentaires et adultes. Mise aux normes PMR sur existants, création ascenseur. Double flux. Déshydrateur alimentaire.
Mode opératoire Opération réalisée en site occupé en cœur d’îlot.
Structure bois avec toitures végétalisées.


